Строительство хоз блока (заказ 85867)

  • Заказ: 85867
  • Заказчик: Павел

  • order

    Заказ от: Физического лица

  • Добавлен: 24.03.2026 в 17:20

  • Адрес: 2-й Молодёжный переулок, 2

  • Минск

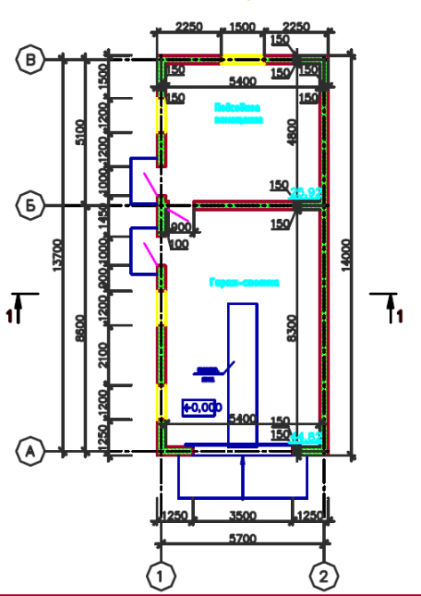
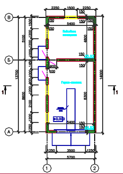
Размер 6 м на 14 м под гараж и мастерскую, материал стен газосиликатные блоки, кровля 2-х скатная, кровля - металлочерепица. Проект есть, эскизы прилагаю, материал закуплен. (заказ 85867)

Вы мастер? Обеспечьте заказами себя, бригаду или компанию
  • Стабильный поток заказов каждый день
  • Вы сами выбираете заказы и заказчиков, предлагаете свои условия
  • Договаривайтесь напрямую без посредников
Что нужно сделать?

Опишите вашу задачу - исполнители откликнутся на ваш заказ

Заказать услугу Телефон

Добавьте заказ – узнайте цены на вашу работу

Наверх