Ремонт в новостройке (заказ 86486)

  • Заказ: 86486
  • Заказчик: Павел

  • order

    Заказ от: Физического лица

  • Добавлен: сегодня 17:42

  • Адрес: минск

  • Минск

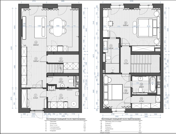
Ремонт в новостройке 125 м2.
- Демонтаж штукатурки, перегородок и частичный демонтаж стяжки
- Возведение перегородок
- Штукатурка
- Зашивка стояков ГКЛ
- Гидроизоляция, монтаж теплых полов
- Сантехнические работы (теплые полы, радиаторы)
- Электрика
- Шпаклевка
- Монтаж потолков из ГКЛ
- Укладка плитки (от 600х600 до 2800х1200)
- Укладка паркетной доски
- Покраска стен и потолка
Есть проект. (заказ 86486)

Вы мастер? Обеспечьте заказами себя, бригаду или компанию
  • Стабильный поток заказов каждый день
  • Вы сами выбираете заказы и заказчиков, предлагаете свои условия
  • Договаривайтесь напрямую без посредников
Что нужно сделать?

Опишите вашу задачу - исполнители откликнутся на ваш заказ

Заказать услугу Телефон

Добавьте заказ – узнайте цены на вашу работу

Наверх